العربية
في الهندسة الكهربائية ، يتم استخدام مفتاح الفصل أو مفتاح الفصل أو مفتاح العزل لضمان عدم تنشيط الدائرة الكهربائية تمامًا للخدمة أو الصيانة.يتم استخدامها فقط لكسر الدائرة وغالبًا ما توجد في التوزيع الكهربائي والمحطات الفرعية ، حيث يجب إزالة مصدر قوة القيادة الخاصة بالآلات من أجل التعديل أو الإصلاح.يمكن أن تكون أدوات الفصل يدوية أو تعمل بمحرك ويمكن إقرانها بمفتاح تأريض لتأريض الجزء المعزول عن النظام لضمان سلامة المعدات والأفراد الذين يعملون عليه. تستخدم مفاتيح عزل الجهد العالي في المحطات الفرعية الكهربائية السماح بعزل الأجهزة مثل قواطع الدائرة والمحولات وخطوط النقل للصيانة.عادة لا يكون القاطع مخصصًا للتحكم العادي في الدائرة ، ولكن فقط لعزل الأمان.على عكس مفاتيح الحمل وقواطع الدائرة ، تفتقر أدوات الفصل إلى آلية لقمع الأقواس الكهربائية ، والتي تحدث عندما تنقطع كهربائيًا الموصلات التي تحمل تيارات عالية.وبالتالي ، فهي عبارة عن أجهزة غير محملة ، ذات قدرة تكسير منخفضة للغاية ، مخصصة للفتح فقط بعد انقطاع التيار عن طريق بعض أجهزة التحكم الأخرى.
| توافر الحالة: | |
|---|---|
RH-B-33
ملخص
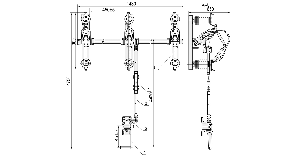
مفتاح عزل عصابة التيار المتردد في الهواء الطلق 11KV / 400A-33KV / 600A يستخدم في دائرة الطاقة ثلاثية الطور AC 50 / 60Hz ، يتم استخدامه للتشغيل والإيقاف عند الجهد بدون تحميل.تنطبق على معيار IEC.IEC60964: 1996 ، IEC62271-102: 2002
المواصفات الفنية
البعد المخطط
ملخص
مفتاح عزل عصابة التيار المتردد في الهواء الطلق 11KV / 400A-33KV / 600A يستخدم في دائرة الطاقة ثلاثية الطور AC 50 / 60Hz ، يتم استخدامه للتشغيل والإيقاف عند الجهد بدون تحميل.تنطبق على معيار IEC.IEC60964: 1996 ، IEC62271-102: 2002
المواصفات الفنية
البعد المخطط
العوازل الخزفية، التي تتكون أساسًا من سيليكات الألومينا، هي مكونات مهمة في خطوط النقل والتوزيع العلوية. وتتعرض موثوقيتها على المدى الطويل للتحدي بسبب الضغوطات البيئية التي تؤدي إلى تدهور الأداء. تحلل هذه المقالة آليات الشيخوخة الأساسية للعوازل الخزفية، مع التركيز على الأشعة فوق البنفسجية وتراكم التلوث. ويستكشف أيضًا أحدث التطورات في تقنيات الطلاء الوظيفية المصممة للتخفيف من هذه التأثيرات، وبالتالي إطالة عمر الخدمة وضمان مرونة الشبكة.
لعقود من الزمن، ظلت المهمة الأساسية لمانع الصواعق ثابتة: حماية المعدات الكهربائية من الجهد الزائد العابر، سواء كان ذلك بسبب ضربات البرق أو عمليات التبديل، من خلال توفير مسار منخفض المقاومة إلى الأرض واستعادة التشغيل العادي للنظام بسرعة. إلا أن وسائل تحقيق هذه المهمة تشهد تحولاً جذرياً. مدفوعة بمتطلبات شبكات الطاقة الحديثة - زيادة التكامل المتجدد، والرقمنة، والحاجة إلى قدر أكبر من الموثوقية - تتحرك تكنولوجيا الحواجز إلى ما هو أبعد من دورها التقليدي السلبي إلى عصر المكونات الذكية والقابلة للتكيف والمرونة العالية.
تعتبر مفاتيح العزل، والمعروفة أيضًا بمفاتيح قطع الاتصال أو العوازل، مكونات أساسية في أنظمة الطاقة الكهربائية. وتتمثل وظيفتها الأساسية في توفير نقطة انقطاع مرئية للعزل، مما يضمن الصيانة الآمنة وإصلاح المعدات النهائية. على عكس قواطع الدائرة، فهي ليست مصممة لمقاطعة تيار الحمل أو تيار العطل. ومع ذلك، فإن تشغيلها الموثوق - أي الفتح والإغلاق عند الأمر - يعد أمرًا بالغ الأهمية لسلامة النظام ومرونته وتوافره.
تعد الصمامات، باعتبارها أجهزة حماية سلبية بالغة الأهمية ولكن غالبًا ما يتم تجاهلها، ضرورية للسلامة الكهربائية. يعتمد تشغيلها الموثوق على سلامة الأسطح العازلة والعنصر القابل للانصهار. تتعمق هذه المقالة في وضعين شائعين للفشل: وميض التلوث السطحي والشيخوخة/التدهور الداخلي. نحن نقدم تحليلًا فنيًا مفصلاً للآليات، ونحدد تقنيات التحديد المتقدمة والعملية، ونصف بروتوكول صيانة منهجي لتعزيز موثوقية النظام ومنع التوقف غير المتوقع.
يمثل التحول العالمي نحو الشبكات الذكية تحولا أساسيا في كيفية توليد الطاقة الكهربائية وتوزيعها واستهلاكها. تتميز الشبكات الذكية بتدفق الطاقة ثنائي الاتجاه، والتكامل العميق لموارد الطاقة الموزعة (DERs) مثل الطاقة الشمسية وطاقة الرياح، والبنية التحتية المتقدمة للقياس (AMI)، وتحليلات البيانات في الوقت الفعلي، وتتطلب جيلًا جديدًا من أجهزة الحماية. ومن بين هذه المنتجات، فإن المصهر المتواضع، وهو حجر الزاوية في الحماية الكهربائية لأكثر من قرن من الزمان، يخضع لتحول تكنولوجي عميق. يكمن مستقبل تكنولوجيا الصمامات في التطور من مكون وقائي بسيط ومضحي إلى أصول شبكية ذكية وقابلة للتكيف وغنية بالبيانات.
لعقود من الزمن، ظلت المهمة الأساسية لمانع الصواعق ثابتة: حماية المعدات الكهربائية من الجهد الزائد العابر، سواء كان ذلك بسبب ضربات البرق أو عمليات التبديل، من خلال توفير مسار منخفض المقاومة إلى الأرض واستعادة التشغيل العادي للنظام بسرعة. إلا أن وسائل تحقيق هذه المهمة تشهد تحولاً جذرياً. مدفوعة بمتطلبات شبكات الطاقة الحديثة - زيادة التكامل المتجدد، والرقمنة، والحاجة إلى قدر أكبر من الموثوقية - تتحرك تكنولوجيا الحواجز إلى ما هو أبعد من دورها التقليدي السلبي إلى عصر المكونات الذكية والقابلة للتكيف والمرونة العالية.
تعمل مانعات الصواعق في خطوط التوزيع (DLSAs) كأجهزة حماية مهمة مثبتة على أنظمة توزيع الطاقة العلوية، والتي تتراوح عادةً ما بين 1 كيلو فولت و38 كيلو فولت. وتتمثل مهمتها الأساسية في حماية المعدات الكهربائية والمحولات والبنية التحتية ضد الجهد الزائد العابر الناجم عن الصواعق وعمليات التبديل والاضطرابات الكهربائية الأخرى.
موسكو، روسيا - في الفترة من 2 إلى 4 ديسمبر 2025، شاركت شركة Zhejiang Haivo بنجاح في المعرض الدولي لمعدات الشبكة الكهربائية في روسيا، حيث قدمت أحدث ابتكاراتها في مجال الحماية الكهربائية وتكنولوجيا توزيع الطاقة.
تعتبر قواطع الصمامات المتسربة مكونات مهمة في أنظمة التوزيع العلوية، مما يوفر حماية وعزل للتيار الزائد. ومع ذلك، فإن التعرض لفترات طويلة للضغوط البيئية والكهربائية والميكانيكية يؤدي إلى الشيخوخة، مما يضر بالأداء والموثوقية. تتناول هذه المقالة آليات التقادم الأساسية وتحدد استراتيجيات الوقاية والصيانة الفعالة لإطالة عمر الخدمة وضمان سلامة النظام.
تمثل أنظمة التوصيل والمقابس عالية الجهد الخارجية (عادةً من 1 كيلو فولت إلى 52 كيلو فولت) حلولًا هندسية متطورة مصممة لتوصيلات طاقة آمنة وموثوقة في البيئات الصعبة. تتيح هذه الموصلات القابلة للفصل توزيعًا مرنًا للطاقة مع الحفاظ على سلامة النظام في شبكات المرافق والمنشآت الصناعية وتطبيقات الطاقة المتجددة. على عكس نظيراتها ذات الجهد المنخفض، تتطلب الموصلات ذات الجهد العالي اهتمامًا دقيقًا بالتحكم في المجال الكهربائي وتنسيق العزل وحماية البيئة.
بريد إلكتروني:jonsonchai@chinahaivo.com
54442019@qq.com
Wechat: +86 13587716869
Whatsapp: +86 13587716869
هاتف: 0086-577-62836929.
0086-577-62836926.
0086-13587716869.
0086-1595777201.